Działka budowlana z PNB
Garlica Murowana gm. Zielonki Pokaż na mapie ›
Ogłoszenie archiwalne Wygasło: Poniedziałek, 08 Grudzień, 2025 16:08
925 000 zł
333 zł/m2
Szczegóły ogłoszenia
- Kategoria: Działki i grunty / Sprzedaż
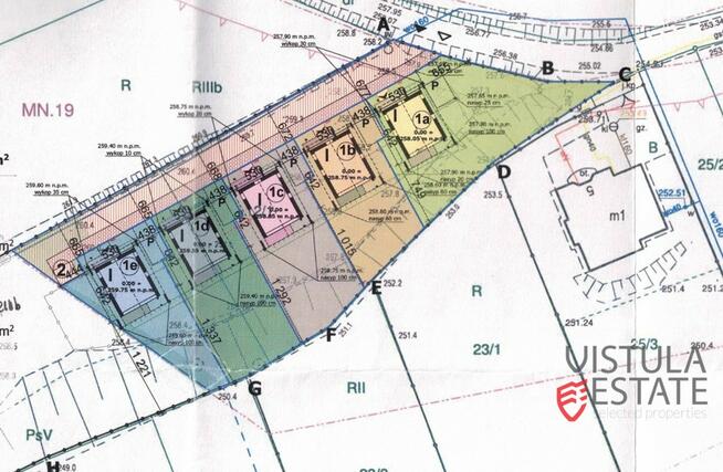
- Pow. działki:2775 m2
- Rodzaj działki:Budowlana
- Sprzedaż:Pośrednik
- Cena: 925 000 zł / 333 zł/m2
Opis oferty
Oferta na wyłączność.Na sprzedaż działka znajdująca się w miejscowości Garlica
Murowana, w gminie Zielonki, z PNB.
Z miejscowości dobry i szybki dojazd do Krakowa. Ulica boczna,
spokojna, z widokiem na zieleń.
Działka z wydanym pozwoleniem na budowę 5 domków o powierzchni 68
m2. Domy składają się z dwóch poziomów.
Na poziomie parteru:
- kuchnia z salonem,
- łazienka,
- sypialnia.
Na poziomie piętra:
- pokój z wyjściem na balkon.
Działka składa się z dwóch działek 12/1 oraz 12/1. Jedna w
całości budowlana, druga z nich częściowo budowlana, częściowo-
las.
Przewidziane ogrzewanie gazowe.
Media w drodze.
Powierzchnia całkowita: 2775 m2.
Powierzchnia zabudowy 1878 m2.
Film z nieruchomości: https://www.youtube.com/watch?v=AV3weijSqd4
FINANSE:
Cena wynosi 925000 złotych.
Przed oglądaniem wymagane podpisanie umowy pośrednictwa.
Biuro pobiera prowizję.
Zapraszam na prezentację.
Katarzyna Wójcik
Vistula Estate
694 - pokaż numer telefonu -
@
Sprawdź zainteresowanie tym ogłoszeniem
Wyświetlenia
Data dodania
Ostatnio widziany
Obserwujących
Wysłane zapytania
Odsłony telefonu
To ogłoszenie jest archiwalne i może być nieaktualne.
- Wypromuj ogłoszenie
- Zgłoś naruszenie
- Drukuj ulotkę
- Edytuj/usuń ogłoszenie
- Udostępnij ogłoszenie
- Dodaj na Facebook















